Discover our range of minor dwellings under 70 m² in Auckland, designed and built by Macalister Construction for smart, flexible living on residential sites across the region. These fully consented secondary dwellings are ideal for extended family, independent living, or creating a high-quality rental opportunity. Each floor plan is carefully crafted to maximise space, natural light, and comfort while complying with Auckland and New Zealand building requirements.
Whether you’re looking to increase property value, generate rental income, or add a well-designed secondary home, Macalister Construction’s minor dwellings offer a practical and durable solution. Built by licensed professionals with a focus on quality workmanship and efficient layouts, our minor dwellings are designed to perform long-term and suit Auckland’s urban and suburban environments.


The Shoreline Minor Dwelling houses 2 bedrooms & a bathroom cosily set-out in a 60sqm floorplan.


The Ridgeline 65 minor dwelling spaciously accomodates two bedrooms, one bathroom and a kitchen in a functional 65sqm floorplan.


The Alpine 40 minor dwelling compactly fit one bedrooms, one bathroom and a kitchen in a functional 40sqm floorplan.


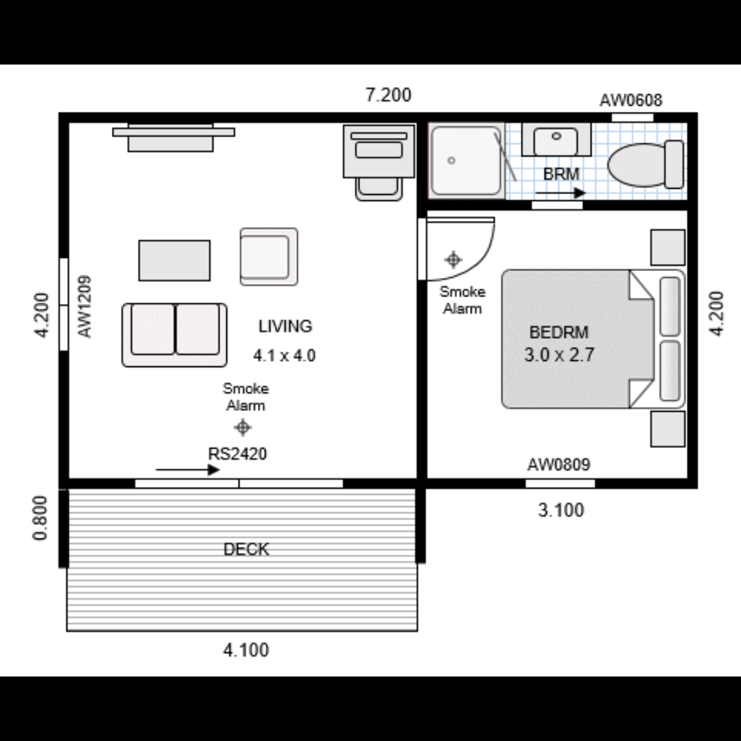
The Harbour 30 minor dwelling compactly fit one bedrooms & a bathroom in a functional 30sqm floorplan.
The Bayveiw 25 minor dwelling compactly fit one bedrooms & a bathroom in a functional 25sqm floorplan.


The Canopy 30 minor dwelling compactly fit one bedrooms & a bathroom in a functional 30sqm floorplan.